教育プラザには、教育委員会事務局各課のほか、生涯学習や文化交流の場として市民の皆さんからお使いいただける、研修室や会議室などを備えています。ぜひ、ご利用ください。


研修棟の利用案内
利用時間
午前8時30分~午後10時
休館日
12月29日~翌年1月3日
使用料金
教育プラザ
| 施設名 |
使用料(1時間あたり)
|
| 2階 研修室(90人) |
780円 |
| 3階 大会議室(81人) |
680円 |
| 2階 中会議室(24人) |
350円 |
| 3階 小会議室(18人) |
240円 |
- 会議室の詳細 [PDFファイル/291KB]
- 施設名のあとに記載している人数はおおむねの収容人数です。
- 営利または営業上の目的で利用する場合は、上記使用料の200パーセントの額となります。
- 市内に住所を有しない個人または市内に事務所等を有しない団体が利用する場合は、上記使用料の200パーセントの額となります。
- 市内に住所を有しない個人または市内に事務所等を有しない団体が、営利または営業上の目的で利用する場合は、上記使用料の400パーセントの額となります。
- 企業のご利用の場合、職員等の研修に使用される場合であっても、営利または営業上の目的での利用として、使用料を納入していただきます。
- 利用時間が1時間に満たないときは、1時間として計算します。
申し込みの流れ
上越市公共施設予約システムから申し込む場合
- 上越市公共施設予約システムにログインし、システム上で施設の予約申し込みを行ってください。
- 後日、施設で申込内容を確認し、貸出可能であれば承認メールを送信します。
- 承認メールが届いたら、オンライン決済で使用料をお支払いください。
- 利用日当日は、上越市公共施設予約システムから利用許可書をダウンロードし、受付窓口に提示してください。
電話や窓口で申し込む場合
- 上越市公共施設予約システム、教育プラザ専用ダイヤル(025-545-9250)、または受付窓口にて施設の空き状況を確認し、仮予約してください。
- 仮予約から1週間以内に、申請書を受付窓口に提出し、本予約をしてください。(郵送、ファックスでの提出も可能です。)
- 申請書提出時に、受付窓口で承認通知書と使用料の納入通知書を受領し、使用料を受付窓口で納入してください。
- 利用日当日は、承認通知書を受付窓口に提示してください。
- 申請書をファックス、郵送で提出された場合は、承認通知書と納入通知書を申請書の住所へ郵送します。
- 申請書を受付窓口または休日夜間受付で提出し、後日の支払いを希望される方は、納入通知書を申請書の住所へ郵送します。
- 利用日が申請書提出日から10日以内の場合は、当日までに使用料を納入してください。
申し込み・問合わせ
- 受付窓口(平日の午前8時30分~午後5時15分):教育総務課(教育プラザ内)
- 受付窓口(平日の午後5時15分以降と土曜日、日曜日、祝日):休日夜間受付(教育プラザ内正面入口)
- 郵送先:〒942-8563 上越市下門前1770番地 教育総務課
- 電話番号:025-545-9250(教育プラザ専用ダイヤル)
- ファックス番号:025-545-9272
(注)教育プラザ体育館、多目的広場の利用申込は、上越市総合体育館(電話:025-525-4144)へお問い合わせください。
申請書ダウンロード
上越市教育プラザ利用承認申請書 [PDFファイル/91KB] 上越市教育プラザ利用承認申請書 [Wordファイル/37KB] 上越市教育プラザ利用承認申請書(記載例) [PDFファイル/98KB]
上越市教育プラザ使用料減免申請書 [PDFファイル/83KB] 上越市教育プラザ使用料減免申請書 [Wordファイル/40KB] 上越市教育プラザ使用料減免申請書(記載例) [PDFファイル/96KB]
利用申込の取り消しを行った場合の使用料の還付について
料金納入後に利用申込の取り消しを行った場合(他の日時に変更する場合も含みます。)の使用料の還付は次のとおりとなります。
(1)利用日を含めない3日前までに申し出があった場合:使用料の70パーセントを還付
(2)利用日を含めない3日前までに申し出がなかった場合:使用料の還付なし
ご利用上の注意
敷地内は全面禁煙です。以下の事項を遵守し、他の利用者の迷惑にならないようご利用ください。
(1)利用の不許可及び中止
催事内容や利用方法が以下のいずれかに該当する場合は、施設の利用をお断りします。
- 公の秩序または善良の風俗に反するおそれがあると認められるとき。
- プラザの施設または設備を破損し、または滅失するおそれがあると認められるとき。
- その他プラザの管理上支障があると認められるとき。
(2)禁止行為
施設内及び敷地内での以下の行為を禁止します。利用者は来場者に対して禁止事項の遵守を徹底してください。
- 指定された場所以外で火気を使用すること。
- 許可を受けないで物品を販売し、若しくは陳列し、または広告類を掲示し、若しくは配布すること。
- 危険を引き起こすおそれのある行為
- その他プラザの管理上支障があると認められる行為
よくある質問
教育プラザ研修棟利用よくある質問 [PDFファイル/146KB]
主な業務
- 児童、生徒、保護者などに対する電話相談(子どもほっとライン 電話:025-543-2199)
- 放課後児童クラブに関する事務(学校教育課 電話:025-545-9244)
- 学校教育活動や区域外就学、就学援助等に関する事務(学校教育課 電話:025-545-9244)
- 学校給食に関する事務(教育総務課 電話:025-545-9266)
- スポーツ推進に関する事務(スポーツ推進課 電話:025-545-9246)
- 体育施設の管理運営に関する事務(スポーツ推進課 電話:025-545-9246)
- 中学校における部活動改革、地域における子どもたちのスポーツ及び文化活動の推進に関する事務(地域クラブ活動推進室 電話:025-545-9267)
- 教育委員会(会議)に関すること(教育総務課 電話:025-545-9262)
- 学校施設の管理や建設等に関する事務(教育総務課 電話:025-545-9263)
- 生涯学習、社会教育に関する事務(社会教育課 電話:025-545-9245)
- 文化財の調査及び維持管理に関する事務(文化行政課 電話:025-545-9269)
- 教育振興に必要な調査研究に関する事務(教育センター 電話:025-545-9247)
- 理科教育研修に関する事務(理科教育センター 電話:025-545-9248)
- 視聴覚教材の貸出し、相談等に関する事務(視聴覚ライブラリー 電話:025-545-9214)
- 青少年健全育成活動(青少年健全育成センター 電話:025-544-4690)
電話は市役所(電話:025-526-5111)からも転送できます。
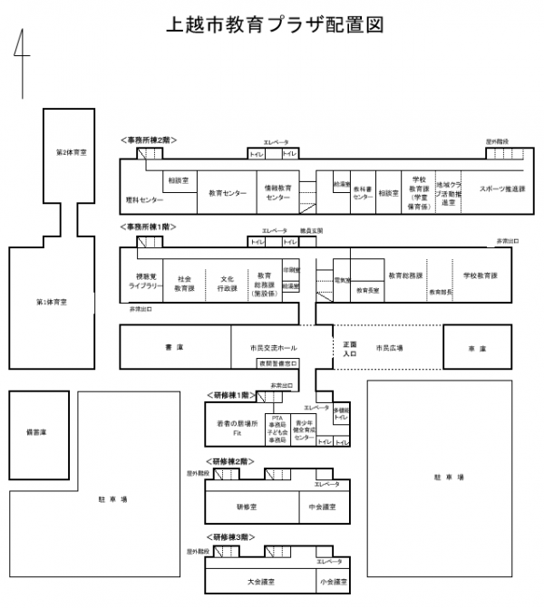
教育プラザ配置図
上越市教育プラザ配置図 [PDFファイル/92KB]
